About Baseline Road
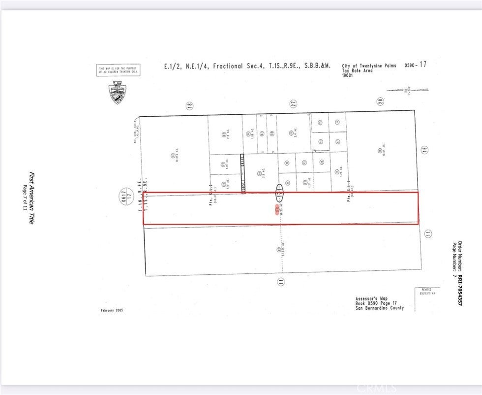
16.25 acres of land = 707,850 sq ft of land. 2565 feet long by 276 feet wide. Across the street is the new Palm Vista Elementary school and on the right is Turtoise Casino. This land has much potential, currently, you can build a mansion on 2.5 acres each, so 6 mansions and an ADU could be built there but if you ask the city planning to change the zone to mixed-use, commercial, industrial, or multi-level apartments the city is very open to this, ask for permission. We went to visit the City Hall and spoke to Diane. She told us that the land is currently allowed usage for nursing homes or elderly care with many units. It could be a few hundred units. This line is extremely valuable and it is next to the casino so the senior can retire there and walk away to enjoy the local casino. 29. Palm is a very warm climate so it’s great for seniors.
Features of Baseline Road
| MLS® # | OC25059000 |
|---|---|
| Price | $1,495,000 |
| Bathrooms | 0.00 |
| Acres | 16.25 |
| Type | Land |
| Status | Active |
Community Information
| Address | Baseline Road |
|---|---|
| Area | 699 - Not Defined |
| City | 29 Palms |
| County | San Bernardino |
| Zip Code | 92277 |
Amenities
| View | Desert |
|---|---|
| Is Waterfront | No |
| Has Pool | No |
Interior
| Has Basement | No |
|---|---|
| Fireplace | No |
Exterior
| Lot Description | SixteenToTwentyUnitsAcre |
|---|
Additional Information
| Date Listed | March 18th, 2025 |
|---|---|
| Days on Market | 219 |
| Zoning | r |
| Foreclosure | No |
| Short Sale | No |
| RE / Bank Owned | No |
Listing Details
| Agent | Alan Ford |
|---|---|
| Office | Elite Mortgage and Real Estate |
